Voor Horecabedrijven;


BHV / ARBO;

Vanuit de lokale overheid voert de Milieudienst inspecties uit in opdracht van de VROM . De inspecties zijn opgestart na de Nieuwjaarsbrand van Volendam en de Schipholbrand.
Tegenwoordig worden Horecabedrijven geconfronteerd met het in orde en aanwezigheid moeten hebben van de nodige documenten en bouwtechnisch moeten voldoen aan bouwbesluit en plaatselijke bouwverordening.

COMPTEK TEKENBURO & VASTGOEDBEHEER heeft bij inspecties van horecagelegenheden ook bemerkt dat de creativiteit aanwezig is onder de eigenaar / managers. Maar al te vaak maakt de eigenaar of manager de keuze van 'goedkoop' door zelf plattegronden te maken, te printen en deze vervolgens op te hangen.
Uiteraard is men daar vrij in, echter wat vaak blijkt is dat de plattegronden voorzien zijn van niet uniforme pictogrammen en dat de ontruimingsplattegronden niet volgens de NEN 1414 zijn gemaakt. Men maakt 1 tekening en hangt deze vervolgens op in het hele pand. Er wordt geen rekening gehouden met de orientatie.
Ook komt men 'self-made' plattegronden tegen die grondig schoongemaakt zijn door de medewerkster van de huishoudelijke dienst; door vocht zijn de tekeningen vervaagd en onleesbaar geworden.



























COMP
TEK TEKENBURO & VASTGOEDBEHEER maakt de plattegronden, plakt deze op foamboard en zorgt voor een lamineerlaag. Voor uw pand een professionele uitstraling en beter beschermd tegen vuil en vocht;



































(
zie ook Media )

Uit de VROM inspecties die inmiddels in horeca gelegenheden hebben plaatsgevonden blijkt dat tekeningen vanaf nieuwbouw vaak niet meer aanwezig zijn en indien de tekeningen wel aanwezig zijn daar nimmer revisie op is toegepast. Panden hebben interne verbouwingen ondergaan en zodanig dat de realiteit niet meer strookt met wat ooit op tekening heeft gestaan. Revisietekeningen zijn daarom nodig.

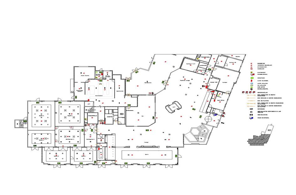
Bij de Gebruiksvergunning dient een plattegrond tekening van uw pand aanwezig te zijn welk voorzien is van de noodzakelijke veiligheids pictogrammen en de huidige indeling weergeeft van het pand. De tekening wordt gebruikt in uw Nood-/BHV plan en dient als informatiebron naar de lokale Brandweer.























                                                                        Tekening Veiligheidsplattegrond volgens NTA 8112




Legionellabeheer;

Legionella beheersplan en Risico Inventarisatie van uw pand dient voorzien te zijn van een
iso-metrische tekening met daarop aangegeven de (drink-) waterinstallatie met daarbij aangegeven de aanwezige beveiligingsappendages.

Inmiddels heeft
COMPTEK TEKENBURO & VASTGOEDBEHEER voor diverse hotels, restaurants, kantoorpanden verouderde tekeningen in orde gemaakt door revisiewerk er op uit te voeren of zelfs geheel nieuwe installatie-tekeningen te vervaardigen.

De tekeningen zijn een onderdeel van het Legionella-beheersplan.
VROM zal in de toekomst eisen dat een Risico-Inventarisatie in het vervolg alleen nog maar gemaakt mag worden als alle documenten aanwezig zijn.
Het legionella-beheersplan bestaat ondermeer uit: tappunt inventarisatie (ook aangegeven op tekening: tappuntnummer en locatie), iso-metrische tekening, monstername rapportages, meetregistraties, spoelrapportages, installatie-aanpassingen.

COMPTEK TEKENBURO & VASTGOEDBEHEER kan voor uw pand een Risico Inventarisatie opstellen en aan de hand hiervan een Legionella Beheersplan maken.

Ook bieden wij monstername aan tegen een voordelig tarief.

Kortom;
Wij bieden een totaal pakket aan !



Onderhoud / Gebouwinspectie;

Uw pand heeft op zijn tijd onderhoud nodig.
Schilderwerk, jaarlijkse controles/inspecties, bouwkundige zaken, electrotechnische zaken, installatietechnische zaken, enz.

Wilt u de stand van zaken weten van hoe uw pand erbij staat en uw pand in kaart brengen zodat u makkelijker overzicht heeft van de kosten of toekomst gerichte zien wat de noodzakelije vervangingen gaan kosten ?

COMPTEK TEKENBURO & VASTGOEDBEHEER kan onderhoud en inspectie voor u verzorgen, maar ook begrotingen opstellen of controleren.
Indien u een gebouwinspectie wenst en voor de komende jaren een begroting nodig heeft, dan kunnen wij dit voor u verzorgen.
De kosten voor een inspectie en begroting zijn afhankelijk van de grootte van uw pand.
Doe vrijblijvend een aanvraag en wij zullen u een passende offerte doen toekomen.



























                                                                             











Technische tekeningen;


COMPTEK TEKENBURO & VASTGOEDBEHEER levert een compleet pakket; wij leveren ons werk af van A tot Z.

Wat de installateur meestal na laat is de werkzaamheden / revisie op papier (of digitaal) aan te leveren, zodat u als eigenaar uw overzicht compleet houdt. Het blijft meestal bij het aftekenen van de werkbon en een factuur.

Wij als vastgoedbeheerder zorgen dat na alle werkzaamheden uw tekeninigen weer up to date worden aangeleverd.
Heeft u een bouwtechnische wijziging in uw pand ? Wij zorgen voor een overzichtstekening met de nieuwe indeling.
Is uw groepenkast aangepast ? Wij zorgen dat U een nieuwe groepenkastverklaring, blokschema en overzichtstekening ontvangt.


























Er zijn legio voorbeelden te noemen, maar wij staan voor
COMPLEET !

In ons totaal pakket worden alle kosten in een offerte inzichtelijk gemaakt.



Tekeningen worden gebruikt voor;

                             - Aanvraag vergunning
                             - Aanvalsplan Brandweer
                             - Bedrijfsnoodplan
                             - Ontruimingsplan
                             - Ontruimingsplattegrond / Vluchtplan
                             - NEN 3140 / 1010 - inspecties
                             - Groepenverklaring
                             - Blokschema
                             - Legionella beheersplan
                             - Gebouw-inspecties
                             - Meerjaren Onderhoudsplan
                             - Keuringen klimmateriaal



De tekeningen vormen een nieuwe basis om het tekeningen bestand weer in orde te maken. Bij nieuwe aanpassingen wordt
COMPTEK TEKENBURO & VASTGOEDBEHEER ingeschakeld om updates uit te voeren over de tekeningen.
Aansluitend kan
COMPTEK TEKENBURO & VASTGOEDBEHEER uw vergunningaanvraag uit handen nemen of advies uitbrengen op onderhoudsgebied.

Neem contact met ons op over de mogelijkheden en redelijke prijsstellingen.

 
Gebouwinspectie; controle op kozijnstatus
Gebouwinspectie; controle op loodslagen
Gebouwinspectie; controle buitenzijde word meegenomen
TEKENBURO & VASTGOEDBEHEER