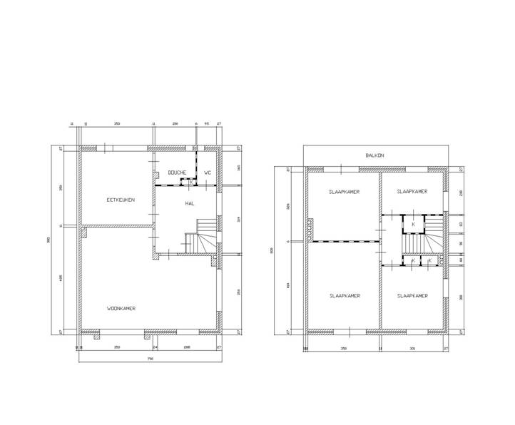
Aspirant kopers vragen tegenwoordig om plattegrondtekeningen van hun toekomstige woning om een beter inzicht te ktijgen van hun toekomstige woning.

De tekening vormt een leidraad om de inrichting te bepalen en eventuele verbouwingsplannen te ontwikkelen.




EPA / Energielabel;

Bij verkoop van de woning heeft men een EPA - W / Energielabel nodig. COMPTEK TEKENBURO & VASTGOEDBEHEER kan deze berekening voor u verzorgen aan de hand van de VABI software en de BRL 9500-01 / ISSO publicaties 82.1 en 82.2.

Omdat er nog discussies lopen over het Energie-label, heeft
COMPTEK TEKENBURO & VASTGOEDBEHEER zich teruggetrokken om zich als bedrijf te laten certificeren.

COMPTEK TEKENBURO & VASTGOEDBEHEER heeft inmiddels wel berekeningen uitgevoerd voor Makelaars en Particulieren om deze toe te kunnen voegen bij de verkoop van een woning.




Legionellabeheer;

Ook voor ondersteuning in het vastgoedbeheer kunt u bij ons terecht. Wij hebben ruime ervaring op het gebied van legionellabeheer binnen het BOG / bedrijfsonroerend goed.

Uw panden staan langere tijd te koop. Hierdoor is de kans op legionellabesmetting in het drinkwaterleidingsysteem binnen uw bedrijfs-onroerendgoed groot.

Voorkom dat het drinkwaterleidingstelsel van uw BOG worden besmet en uw naam als makelaar negatief in de media komt.

COMPTEK TEKENBURO & VASTGOEDBEHEER kan u deze zorg uit handen nemen door legionellabeheer uit te voeren. Wij kunnen voor u een risico inventarisatie met een tappunt-inventarisatie maken. Ook de uitvoer van een legionellabeheersplan kunnen wij verzorgen.

Vanuit het legionellabeheersplan kunnen wij zorgdragen voor de periodieke spoelacties, metingen, monsternames, aanpassingen op het drinkwaterleidingstelsel, keerklep controle, thermisch- en chemisch reiniging, iso-metrische tekening, enz.


































Inspectie BOG;

COMPTEK TEKENBURO & VASTGOEDBEHEER beheerst de disciplines electrotechniek, werktuigbouw en bouwkunde.
Ontbreekt het u als makelaar de tijd om een grondige inspectie te doen op uw bedrijfsonroerend goed ; dan is
COMPTEK TEKENBURO & VASTGOEDBEHEER misschien de juiste partij die u hiervoor kunt inschakelen om u hierin te ondersteunen.

Te denken valt aan controles noodverlichting, NEN 1010 electrische installaties, bouwkundige inspectie, schilderwerk, inspectie HVAC, enz.

Uiteraard krijgt u een helder verslag eventueel met bijgevoegde documenten / foto / video verslag.




Vastgoedprojecten;

Bij ontwikkeling van vastgoedprojecten kunnen wij het bouwkundige tekenwerk uitvoeren, maar ook het installatietekenwerk en elektrotechnisch tekenwerk. U bespaart aanzienlijke kosten; om de eerste plannen te kunnen realiseren is niet direct een architect nodig om uw ideeën op papier te laten zetten.

Misschien dat we voor elkaar iets kunnen betekenen.

Neem contact met ons op over de mogelijkheden en redelijke prijsstellingen.





Voor Makelaars;

Aspirant koper(s);

Van oudere panden zijn vaak tekeningen niet meer voorhanden of zijn de tekeningen dusdanig verouderd dat deze bijna niet meer te gebruiken zijn bij verkoop van een pand.

COMPTEK TEKENBURO & VASTGOEDBEHEER voorziet makelaars in de behoefte om verkooptekeningen aan te leveren tegen een redelijke prijs voor hun aspirant koper(s). Door op uw makelaarskantoor een maatgevoerde tekening voor te leggen bij de aspirant koper word een keuze voor een kopersbezoek vaak makkelijker gemaakt.

De tekeningen worden door de aspirant kopers ook gebruikt voor de toekomstige ver- / bouwplannen.

Is het niet mooi om een totaal pakket aan te bieden aan uw clientele ?
Handmatig  ‘potlood’-tekening
Dezelfde tekening gedigitaliseerd naar CAD-tekening
Iso-metrische tekening
TEKENBURO & VASTGOEDBEHEER